Planning Granted for Rear House Extension in Leicestershire!
- Laura

- Nov 16, 2022
- 1 min read
We are so pleased to have received planning permission for this small house extension in Leicester!
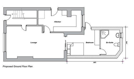
The family contacted us to redesign the rear of the house. The brief was to remove the aged conservatory and add a downstairs bedroom and ensuite for an ageing family member.

We followed the same lines as the previous addition in order not to take up too much of the garden. We managed to fit in a good size bedroom, storage and an accessible ensuite.

The application came back with a few comments and was finally approved after approximately 4 months.
Adding on annexes or downstairs rooms, in order to add accessible rooms or home offices, is becoming extremely popular. Get in touch today to discuss your project and to book in a free consultation!




Comments