Planning Application Submitted for Loft Conversion in Market Harborough
- Laura

- Aug 12, 2022
- 2 min read
Wow - what a busy week it has been here at Lloyd Harden HQ!
Not only are we on fire with getting these planning applications in and approved but we are almost literally on FIRE because it has been absolutely boiling this week!
This application is for our lovely clients, just down the road in Market Harborough, who wanted to extend their bungalow upwards to create another level.
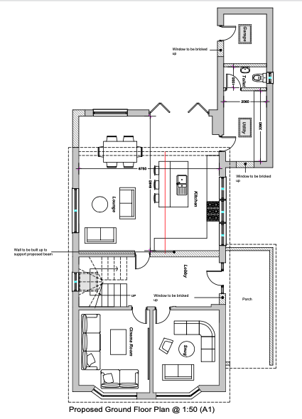
The one storey dwelling consisted of two bedrooms, a family bathroom and separate WC. The lounge kitchen and dining room were all separate and needed opening up.
The layout downstairs has almost completely changed and it looks stunning! We've opened up the back of the house to make a lovely open-plan kitchen diner with bi-fold doors. We also added a lounge area to this beautiful open-plan area of the house.
The old downstairs bedrooms have been transformed into a snug and separate cinema room and the old office will be a beautiful lobby and open staircase.
We moved the bedrooms into the loft conversion and added a master suite with an ensuite and walk in wardrobe to die for! The ensuite even has a sauna. Wow!
We did this by raising the room in order to fit in full size rooms upstairs. There will be some areas that are lower than others but we usually get around these by popping the bath or the bed in this area - or anywhere where height is not required.
We absolutely love this design and this home is going to be completed transformed! It really is incredible and we can't wait to see it get built.
If you're thinking about making room in your house with an extension or loft conversion - we can help! Get in touch and chat to one of our experts today!










Comments